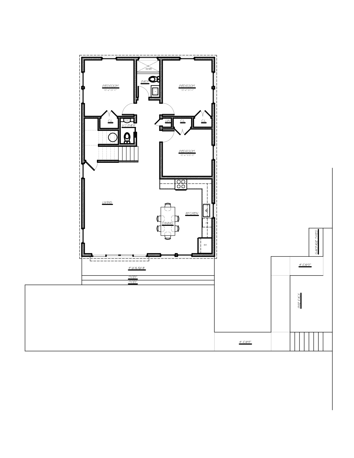
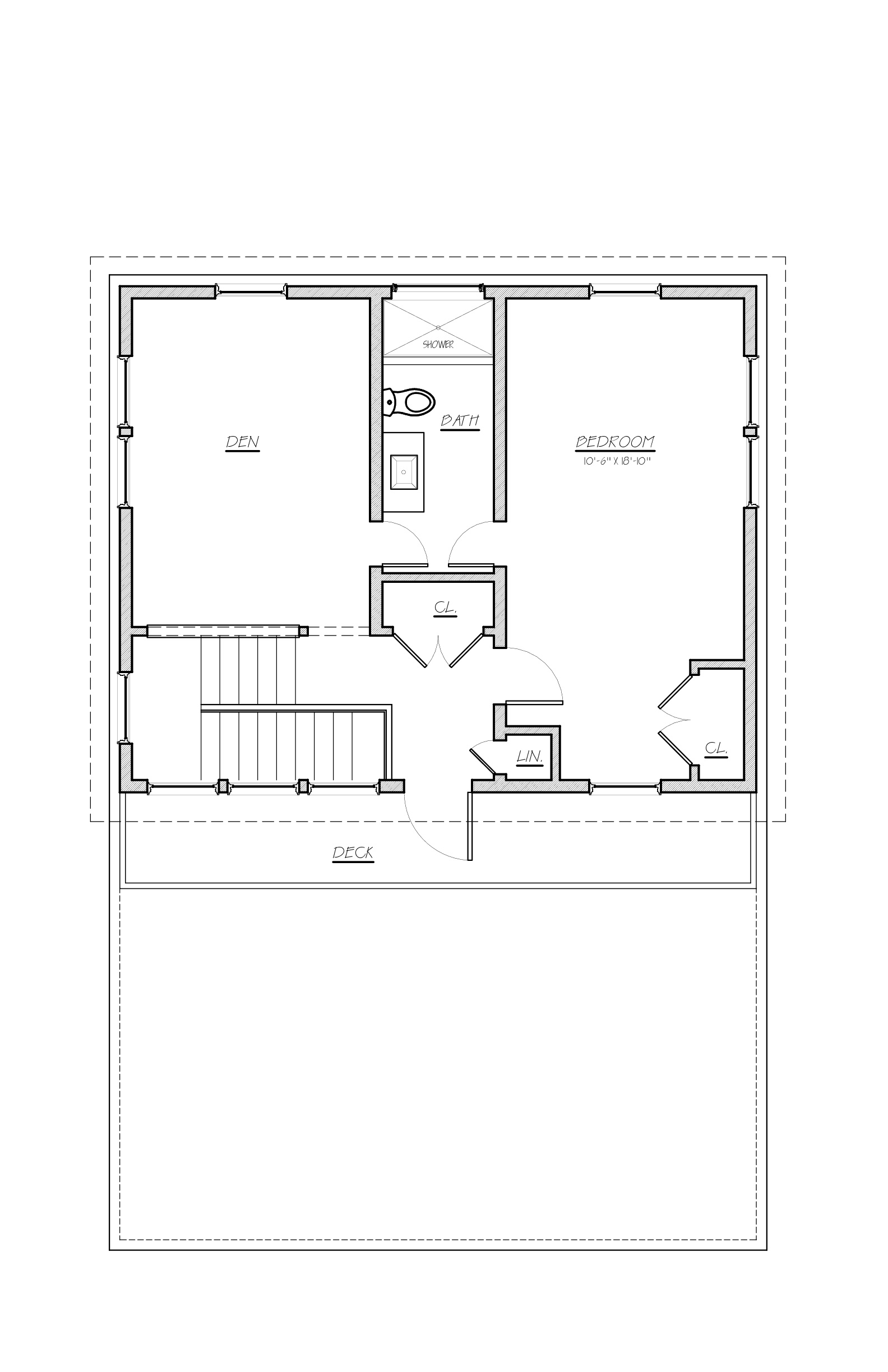
Fair Harbor, Fire Island--New construction with bay views designed by John Riley
Property Status:
New construction designed and built 2017
This new construction project was headed by designer and field manager John Riley. Newman Construction is known for building with efficiency and precision and this is another project that reflected that. After permits were obtained all subcontractors were scheduled and ready to go. Only 1 month into the build and the house had been framed, sheathed, sided and windows and exterior doors placed. Following that, the project ran smooth and was completed ahead of schedule, ready for the 2017 summer.
Click below to see our gallery for aerial videos on this project
Additional Features
- Beautiful bay side beach house with design that captures bay views
- Designed with 10 ft ceilings throughout for open airy feel
- John Riley designer and project manager
- 10 ft ceilings allows for expansive window design which brings more natural light
- Mahogany decking for luxurious look and durable to withstand island conditions
- Mini split air conditioning/heating system throughout for excellent temperature control year round
- Built with maintenence free exterior cement fiber siding
Contact Us
Location & Information
Fair Harbor, Fire Island--New construction with bay views designed by John Riley
Ref #: C003
- Lot size: 6400 sq ft
- House size: 1900 sq ft
- Built: 2017
